Totalrenovering / Hvorfor bruke Arkivet

Designprosessen bak vår baderom tjeneste!

. 4 min read . Written by Martina Asplund
Designprosessen bak vår  baderom tjeneste!

Les mer om interiørarkitekt Lives baderomsprosjekt i Nord-Norge som er levert via plattformen Arkivet. Kunden hadde et bad på 8,5 kvm som skulle totalrenoveres. Det var ønske om et moderne og luksuriøst uttrykk, badet skulle være praktisk til en familie på fire der man ønsket å optimalisere plassering av elementer for funksjonalitet og estetikk. Totalbudsjett hadde en ramme på 400 000 kr.

Kunden trengte

  1. Forslag på ulike planløsninger.
  2. Forslag på fliser og farger.
  3. Garnityr som toalett, spyleknapp, vask, møbel, speil etc.
  4. Belysningsplan som viser plassering av belysning med forslag på lysarmaturer.

Tegningsgrunnlaget trengte dem for enkel kommunikasjon med håndverkerer og for å få prosjektet priset samt å kunne bestille det som trengtes til prosjektet i tide.

Designprosessen blir delt inn i tre faser:

Fase 1

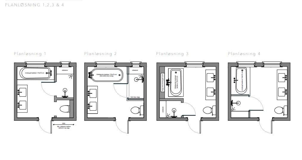
Først trenger man å finne den optimale planløsningen og definere designuttrykket man er ute etter. I dette prosjektet ble det utarbeidet 4 ulike forslag på planløsninger, men det vil varierer fra prosjekt til prosjekt hva det det behov for. Ut fra inspirasjonsbilder og dialogen Live hadde med kunden, definerte hun et designuttrykk i et moodboard med inspirasjonsbilder fra Pinterest.

Live presenterte fire ulike planløsninger basert på kundens ønsker.
Konseptkollasj med inspirasjonsbilder fra Pinterest

Fase 2

Når kunden har bestemt seg for hvilken planløsning og designuttrykk man ønsker å gå for, fortsetter prosessen med valg av materialer, møbler som badekar, vask og toalett. Live presenterer dette for kunden i et moodboard for å se ting samlet. Det blir også gitt forslag i ulike priskategorier for å ha et beslutningsgrunnlag basert på ønsker og budsjett. Kunden gir tilbakemelding på hva som er aktuelt å gå videre med og det utarbeides en produktliste med linker til produktene samt materialliste på flis og farge.

Produkter satt sammen i kollasj med bilder fra Pinterest og leverandører.
Forslag på blandebatterier i ulike priskategorier
Produktlisten blir satt sammen basert på de produkter som kunden ønsker å ha og er linket til produktet i listen.
Her presenteres fliser og farger som er valgt til prosjektet.

Fase 3

I siste fase utarbeides tekniske tegninger, oppriss med mål, belysningsplan samt beskrivelse og informasjon for håndverkere. Her blir også de siste detaljene presentert som vil være prikken over i:en for å få til den stemningen man er ute etter. Det er gardiner, kroker og annet dekor. Det blir presentert for kunden i form at et moodboard, instruks på plassering i plantegning samt innkjøpsliste med linker til produktene.

Tekniske tegninger og oppriss. Inspirasjonsbilder fra Pinterest for å illustrere designuttrykket man er ute etter til håndverker.
Belysningsplan med forslag på lysarmaturer
Moodboard med forslag til dekor
Beskrivels på hvor plassering av dekor er tenkt
Produktliste med linker til produktene

I dette prosjektet ble det også valgt et Micro Silk badekar etter ønske fra kunden. Micro Silk teknologien kombinerer mikrobobler, oxygen og negative ioner det skal ha en rekke helsefremmende effekter, i tillegg til at det er bakteriedrepende og holder på varmen i vannet.

Under designprosessen har det vært dialog mellom Interiørarkitekt Live og kunden hele veien og man har diskutert mange løsninger og sett på alternativer med bakgrunn på både funksjonalitet og kostnader. Ofte er drømmer og ambisjonene store men budsjett og rommets begrensninger gir utfordringer. Da er det fint å ha en Interiørarkitekt som kan faget å sparre med for kreative løsninger. Prosjektet blir best hvis designprosessen kommer igang på et tidlig stadie hellst innen valg av håndverker fordi grunnlaget som blir laget kan brukes til å hente inn priser som kan sammenlignes mye bedre enn hvis man ikke har et konkret grunnlag å utgå fra. Leveringstider er en annen kritisk faktor sett opp mot tidslinjen på prosjektet, hvis man sikrer kontroll på dette blir gjennomføringen av prosjektet mye bedre og mest sannsynlig også rimligere.

Trenger du hjelp med et baderom? Ta kontakt under!

Vil du se mer av prosjektet klikk her.

Trenger du hjelp med et baderom?

Registrere forespørsel her

Baderom